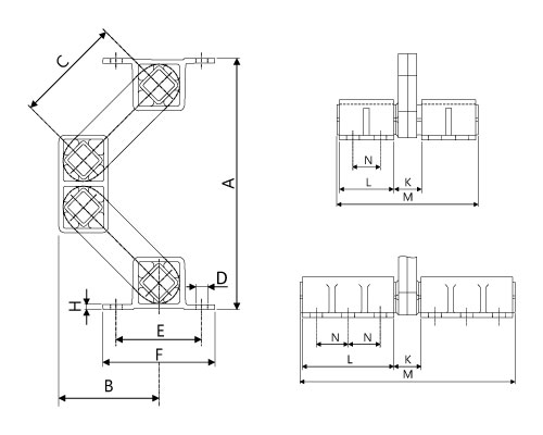
Корпуса для монтажа изготовлены из сферолитейного чугуна, промежуточные кронштейны — из сварной стали.

С помощью мыши или пальца перетащите и поверните
Корпуса для монтажа изготовлены из сферолитейного чугуна, промежуточные кронштейны — из сварной стали.

| Model / Type | G (N) | A Yüksüz (mm) | A Max Yük (mm) | B Yüksüz (mm) | B Max Yük (mm) | C | ØD | E | F | H | K | L | M | N | Ağırlık / Weight (Kg) |
| AAB 50 TWIN | 5.000-12.000 | 380 | 277 | 150 | 184 | 150 | 17x27 | 130 | 170 | 12 | 50 | 120 | 300 | 60 | 39,2 |
| AAB 50-2 TWIN | 8.400-20.000 | 380 | 277 | 150 | 184 | 150 | 17x27 | 130 | 170 | 12 | 60 | 200 | 470 | 70 | 61,5 |